Обяви За нас Контакти
Продава ПАРЦЕЛ
град Пловдив, Рогошко шосе
714 560 €
1 397 557.88 лв.

(140 €, 273.82 лв./m2)
Цената е без ДДС
История на цената
Публикувана в 6:27 на 24 април, 2026 год.
Обявата е посетена 14 пъти.
Площ:
5104 m2
Регулация:
ДА
Ток:
ДА
Вода:
ДА

Описание на имота:


Оферта 86828

🏗️ **Парцел с одобрен проект и Право на Строеж в гр. Пловдив, Рогошко шосе, втора линия** 🏗️ Възможност да започнете веднага да реализирате строителство!!! Ток, Вода и оптичен интернет пред парцела!!!

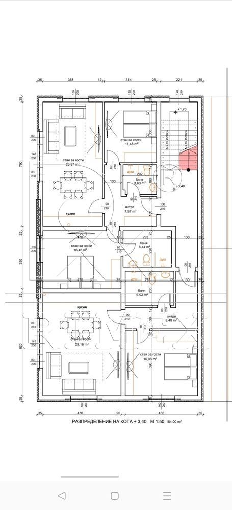
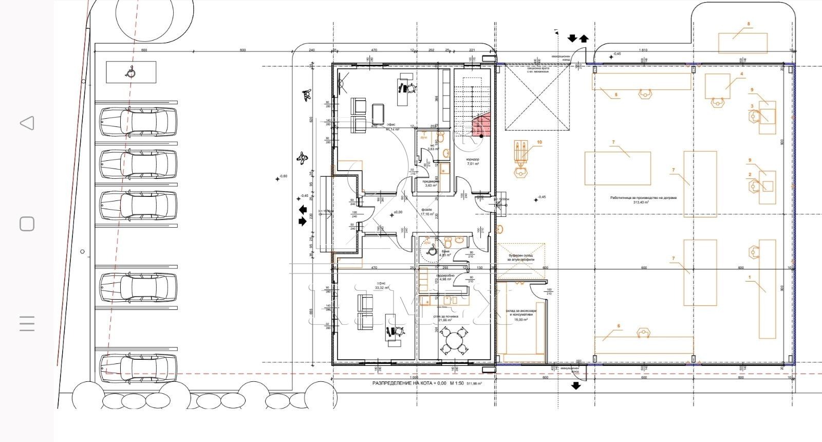
Предлагаме за продажба отличен инвестиционен имот с голям потенциал, разположен на комуникативна локация в района на **Рогошко шосе, гр. Пловдив**. Имотът представлява **парцел с обща площ от 5104 кв.м, от които 4926 кв.м. основен парцел ведно с прилежащ път 178 кв.м. **, с **одобрен проект и право на строеж на Термопанелно хале с монолитна част, Общо РЗП 700 кв.м**. 💼🏡

🔹 **Основни характеристики на имота:**

- 📍 **Локация:** Пловдив, район Рогошко шосе

- 📐 **Площ на парцела:** 5104 кв.м

- 🏢 **Право на строеж:** РЗП 700 кв.м

- ✅ **Одобрен проект**

- 💶 **Цена:** 714 560

🔹 **Разпределение по проект:**

- 🧱 **Монолитна част Етаж 1:**

- офиси

- съблекални

- бани

- стаи за почивка

- 🏠 **Етаж 2:**

- един **двустаен апартамент**

- един **тристаен апартамент**

🔹 Термопанелно хале

🔹 **Предимства на имота:**

- ✅ Готовност за реализиране на проект

- ✅ Подходящ за инвестиция или развитие на бизнес

- ✅ Лесен достъп до основни пътни артерии

- ✅ Възможност за комбиниране на жилищна и административна функция

- ✅ Просторен парцел с отличен потенциал за бъдещо развитие

🌟 Имотът е чудесна възможност за инвеститори, строителни предприемачи или компании, които търсят терен с подготвена документация и стратегическа локация в един от най-динамично развиващите се райони на Пловдив.

🏙️ **За квартала / района:**

Районът на **Рогошко шосе** се развива активно и предлага бърз достъп до централната част на Пловдив, както и удобни връзки към изходите на града. 🚗

Зоната е предпочитана за бизнес и инвестиции, благодарение на добрата инфраструктура, просторните имоти и перспективата за бъдещо развитие. 📈

Особености
Виза
За пром.строителство
За контакт:
0894 321 557
Брокер:
Борис Мандулов
0894 321 557, 032 62 16 12
Офис: Христо Г. Данов 43
Още оферти от брокера: Продава | Дава под наем | Купува | Наема
Агенция:
РИМЕКС ИМОТИ
032/ 62 16 12, 032/ 62 56 16
РИМЕКС ИМОТИ logo
Медал за прослужено време
В imot.bg от 2010 г.
rimex.imot.bg
Адрес:
област Пловдив, гр. Пловдив, ул. Христо Г. Данов 43
http://www.rimex-imoti.com
ИЗПРАТИ ЗАПИТВАНЕ
ИЗПРАТИ ЗАПИТВАНЕТО

Продава ПАРЦЕЛ
град Пловдив, Рогошко шосе
Обява: 1r177700126093476

714 560 €
1 397 557.88 лв.
История на цената
(140 €, 273.82 лв./m2)

Цената е без ДДС
ЗАПАЗИ ОБЯВАТА

Местоположение: град Пловдив, Рогошко шосе

Допълнителни данни за имотите в района и сравнение с други райони

Покажи

Период

и 4 месеца

* Средните цени са определени чрез медианна стойност