РИМЕКС ИМОТИ
Обяви
За нас
Контакти
Увеличи
1
/
1
27 800 €
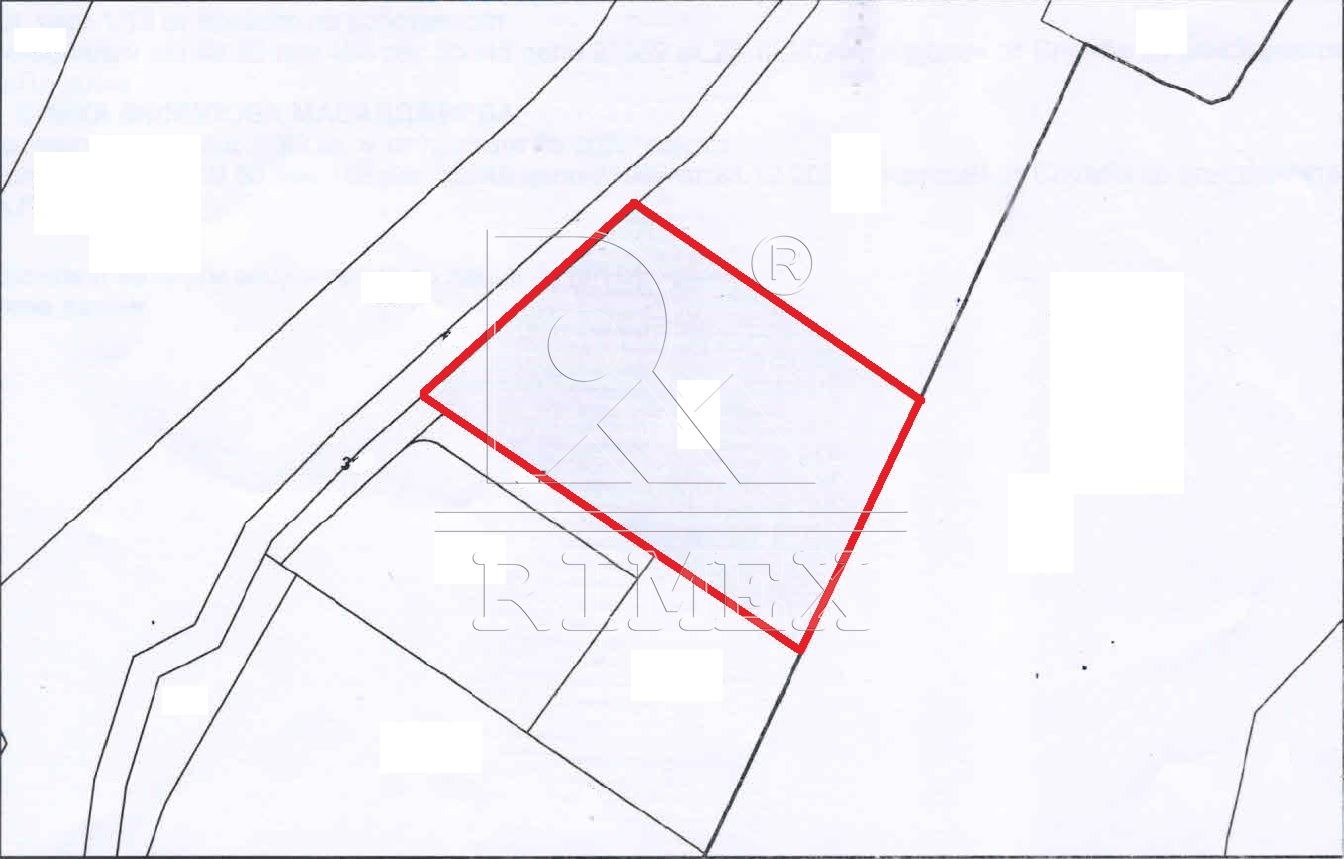
54 372.07 лв.,, Продава ЗЕМЕДЕЛСКА ЗЕМЯ, област Пловдив, с. Първенец
Площ: 0.894 дка, Агенция, Начин на ползване: Лозе, Категория: 4,
Продава ЗЕМЕДЕЛСКА ЗЕМЯ
област Пловдив, с. Първенец
Виж карта
27 800 €
54 372.07 лв.
(31 096 €, 60 818.49 лв./дка)
История на цената
Коригирана в 10:05 на 19 ноември, 2025 год.
Обявата е посетена
498
пъти.
Площ:
0.894 дка
Начин на ползване:
Лозе
Категория:
4
Описание на имота:
Оферта 75214. Първенец, в края на селото, недалеч от ресторант Явор, 894 кв.м. На асфалтов път, лице около 24 м, не е сменен статута. Подходящ за жилищно строителство след смяна на предназначението.
Цена - 27 800 евро
За контакт:
0893 56 86 44
Брокер:
Силвия Коджаманова
0893 568 644, 032 62 56 16
Още оферти от брокера:
Продава
|
Дава под наем
|
Купува
|
Наема
Агенция:
РИМЕКС ИМОТИ
032/ 62 16 12, 032/ 62 56 16
В imot.bg
от 2010 г.
rimex.imot.bg
Още оферти:
Продава
|
Дава под наем
|
Купува
|
Наема
Адрес:
област Пловдив, гр. Пловдив, ул. Христо Г. Данов 43
http://www.rimex-imoti.com
ИЗПРАТИ ЗАПИТВАНЕ
Вашето име:
Вашия телефон:
Вашия е-mail:
Запитване: (до 1000 символа
)
ИЗПРАТИ ЗАПИТВАНЕТО
Съгласявам се с
общите условия
и
политики за защита на личните данни
Сподели:
Продава ЗЕМЕДЕЛСКА ЗЕМЯ
област Пловдив, с. Първенец
Обява: 1s167481443304957
27 800 €
54 372.07 лв.
История на цената
(31 096 €, 60 818.49 лв./дка)
0893 56 86 44
Изпрати E-mail до продавача
ЗАПАЗИ ОБЯВАТА
Сподели:
РИМЕКС ИМОТИ
област Пловдив, гр. Пловдив, ул. Христо Г. Данов 43
В imot.bg
от 2010 г.
rimex.imot.bg
Местоположение:
област Пловдив, с. Първенец